Venta 195.000€ - Piso / Apartamento
Piso en Monte Alto a la venta
El anuncio contiene imágenes creadas con IA para ayudar a ver las posibilidades de actualización o reforma del inmueble publicitado.
En la zona de Monte Alto, muy cerquita de las playas y a un paso del nuevo mercado de Monte Alto, se ubica esta vivienda en una 3ª planta, exterior y muy soleada.
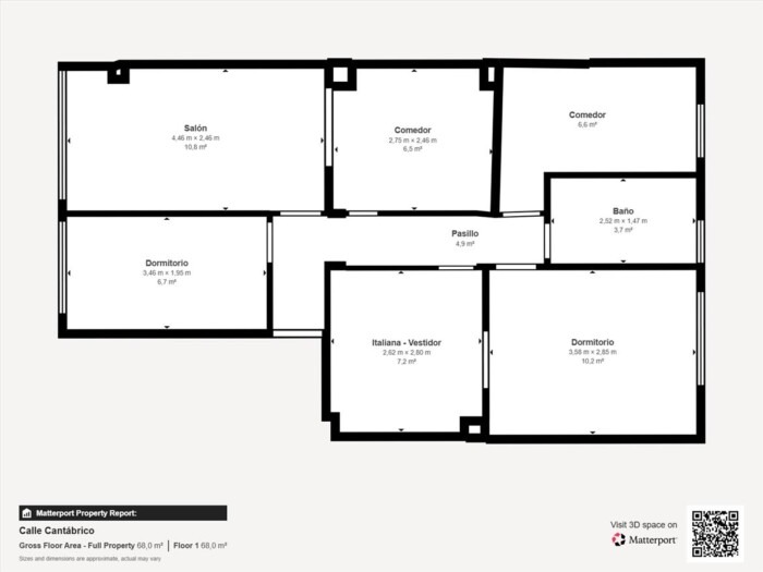
El edificio es del año 1965, no tiene ascensor, las placas son de hormigón y la vivienda cuenta con una superficie de 68 metros muy bien distribuida ya que casi no se pierde nada en pasillo y las estancias que tiene son muy cuadradas.
Actualmente cuenta con cocina, cuarto de baño amplio, salón y una habitación italiana ideal para usar como comedor, 2 dormitorios y una habitación italiana que comunica con la habitación principal por lo que sería también ideal para convertir en un amplio vestidor.
El piso está en muy buen estado, tiene suelos de parquet, ventanas de aluminio, cocina y baño reformados de hace unos años. Ideal como vivienda o como inversión.
La orientación es Este-Oeste por lo que tiene sol todo el día.
Nota: La información facilitada es orientativa, no tiene carácter vinculante y carece de valor contractual. Dicha información puede haber sufrido modificaciones que aún no han sido incorporadas. La descripción está destinada a brindar una función estrictamente referencial, sin validez jurídica alguna. No incluidos los gastos de escrituración, registros, impuestos, etc… Le sugerimos se ponga en contacto con la empresa para obtener los últimos datos y/o confirmar los aquí expuestos.




















